El Club de Leones Bell Ville firmó el contrato que permitirá dar inicio a la construcción del Centro Oftalmológico “Leones por la Visión”, un proyecto clave para fortalecer la salud visual y la atención preventiva en la comunidad. La obra se ejecutará en el predio de la Salud Pública Municipal, un espacio estratégico que garantiza accesibilidad y cercanía para quienes más lo necesitan.
El acuerdo fue suscripto por la presidenta del Club de Leones Bell Ville, Jorgelina Aristegui; la directora del proyecto, Marianela Sillem; el arquitecto Aldo Carmona; y Silvana Cavallin, en representación de la empresa Carmona Construcciones.
El financiamiento del Centro se realizará en un 75% con aportes de la Fundación, por un monto de USD 112.500, mientras que el 25% restante será cubierto con fondos locales aportados por la Municipalidad de Bell Ville, el Club de Leones Bell Ville, además del Club de Leones Alta Córdoba, reflejando un trabajo articulado entre instituciones y el Estado local.
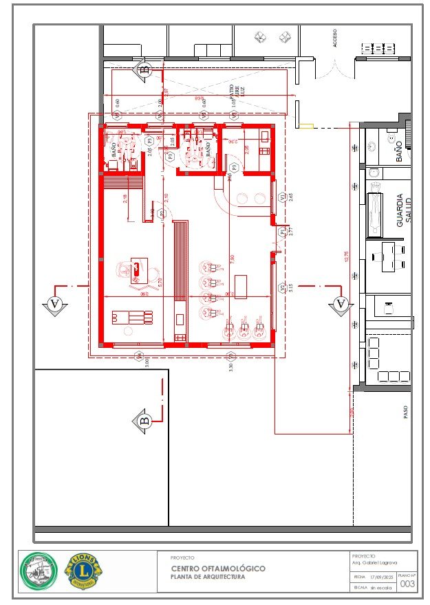
El edificio contará con una superficie aproximada de 90 metros cuadrados e incluirá sala de espera, un consultorio, sector de atención, una pequeña cocina y dos baños adaptados para personas con discapacidad. El plazo estimado de ejecución es de entre cuatro y cinco meses.
Este proyecto representa mucho más que una obra de infraestructura: es una inversión en salud visual, prevención y atención de calidad, que permitirá ampliar y mejorar los servicios oftalmológicos para los vecinos de Bell Ville.


